Ce que propose ce logement
A propos du logement
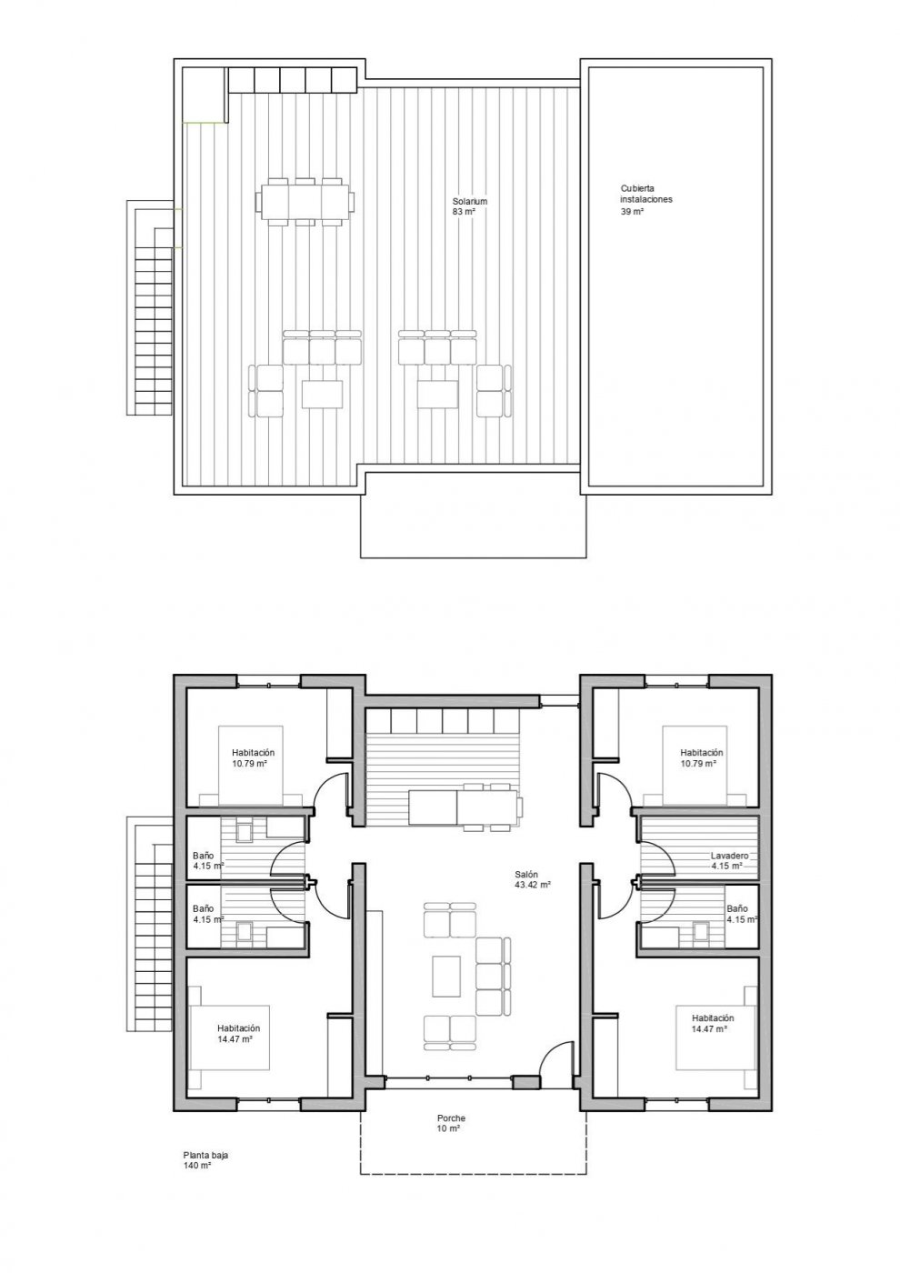
Villas de luxe en construction neuve de 2 niveaux à Roldan, Murcia.
Villas construites sur des parcelles de près de 600 M2 chacune, avec piscine privée de 30 M2, zone de jardin et grand solarium sur le toit.
Chaque propriété dispose de 4 chambres à coucher et 3 salles de bains équipées et ont été conçues avec un style contemporain et un concept planifié ouvert, composé d'une cuisine entièrement équipée et d'un salon-salle à manger.
Le projet est situé à Roldán (Murcia), dans un complexe fermé et contrôlé, inclus dans un plan partiel de 300 000 m2, entouré de tous les services, d'installations sportives et à proximité de plusieurs terrains de golf.
La propriété répondra aux normes les plus élevées et sera équipée de :
Piscine privée de 30 M2 avec douche solaire.
Pré-installation pour pompe chauffante.
Cuisine entièrement meublée et équipée d'un four surélevé, d'un micro-ondes intégré, d'un lave-vaisselle intégré, d'un réfrigérateur et d'une hotte aspirante.
Zone d'îlot dans la cuisine.
Éclairage LED : à l'intérieur de la propriété (salle à manger, cuisine, couloirs et salles de bains), ainsi que dans les espaces extérieurs.
Armoires doublées avec tiroirs.
Salles de bains entièrement équipées avec meuble-lavabo suspendu et toilettes suspendues, miroir avec lumière, douche avec "effet pluie" et écrans de douche.
Pré-installation de la climatisation par conduits.
Cuisine d'été avec portes coulissantes dans le solarium. Pré-installation pour machine à laver et prise pour réfrigérateur.
Panneau solaire.
Parking sur le terrain.
Roldan est une ville traditionnelle avec toutes les commodités locales dont vous aurez besoin, y compris les supermarchés, les restaurants, les bars, la clinique, la pharmacie, le poste de police, la station-service, les mécaniciens, les dentistes, les médecins et plus encore.
Les stations de golf voisines de La Torre et Terrazas sont facilement accessibles, l'aéroport de Corvera est à 15 minutes et les plages de la Mar Menor à 20 minutes en voiture.
Détail du prix
Vous avez besoin d'un financement ?
Localisation
Vos avantages
✅ Visites en français
✅ Aide au financement
✅ Garantie 10 ans
❌ Sans commission
Diagnostics énergétiques
✅ Visites en français
✅ Aide au financement
✅ Garantie 10 ans
❌ Sans commission
J'explique mon projet
Cette propriété m'intéresse et je veux en savoir plus.





























